The standard dimensions for a cornhole board are 48 inches by 24 inches with a raised surface that is 12 inches off the ground. The board should have a 6-inch diameter hole centered 9 inches from the top and 12 inches from each side. These dimensions are used in official cornhole tournaments and are recognized by the American Cornhole.. STEP 1: DIMENSIONS. Its important you first know the established dimensions for cornhole. Here's a diagram with the basic measurements for the boards. The American Cornhole Organization is who we referred to for these measurements. (They get a tad bit more specific with their dimensions so if you're building a tournament set you can visit.

How to Play Cornhole Official Rules and Regulations

Custom Backyard Cornhole Courts VersaCourt

CornholeBoardDimensions.001

Cornhole Court and Board Dimensions (Size and Measurements)

Free Cornhole Game Plans Bag Toss Boards Our Recipes For Success

How to Build a Set of DIY Cornhole Boards TheDIYPlan

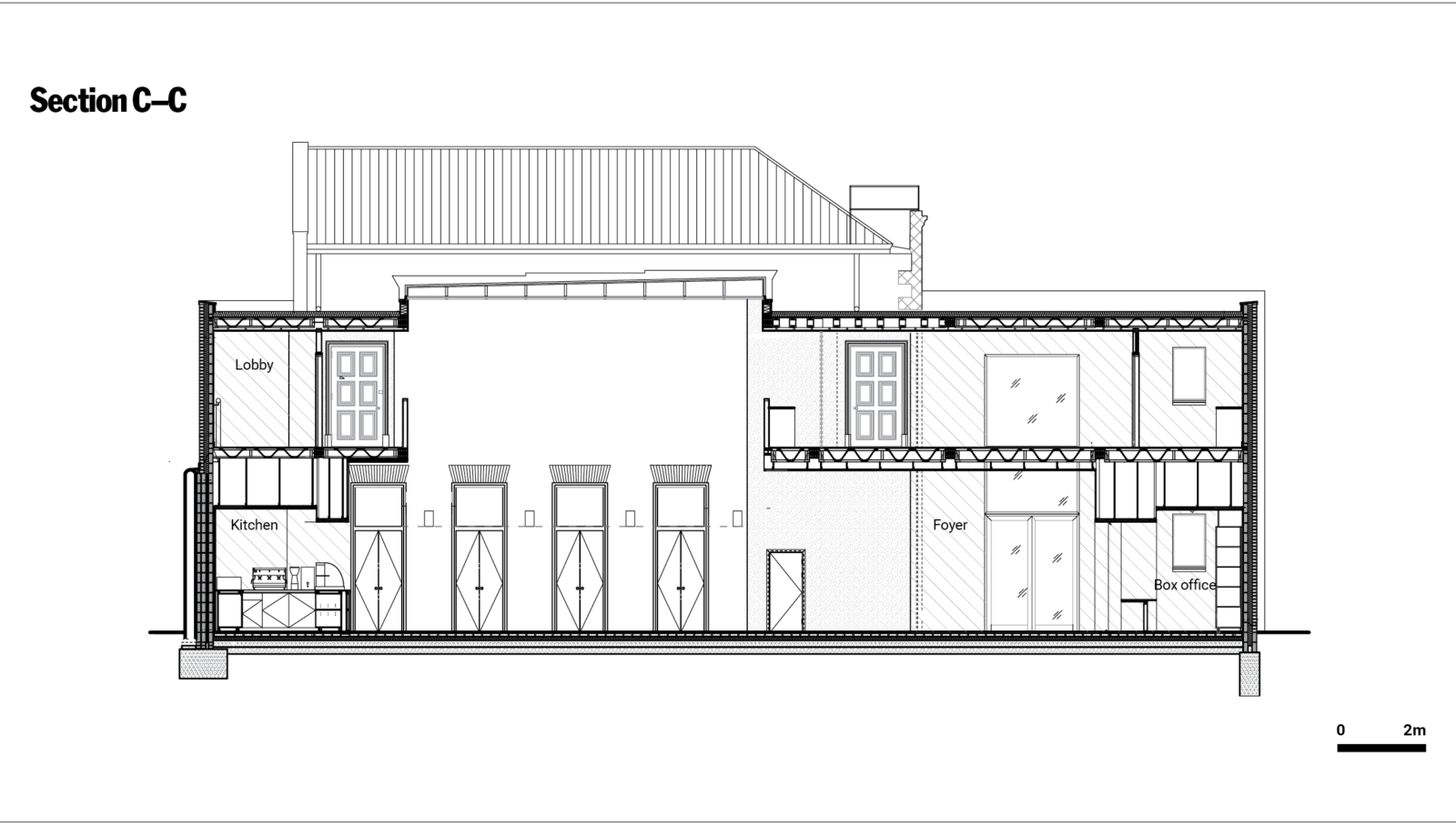
Diss Corn Hall refurbishment by Hudson Architects

Regulation Cornhole Board DIY Plans PDF Etsy Diy cornhole boards, Cornhole board plans

Cornhole Distance Cornhole distance, Cornhole, Corn hole dimensions

Cornhole Board Dimensions and Guidelines Homenish

Cornhole Game Board Dimensions

Cornhole Board Size and dimensions guide When size matters

CornholeBoardDimensions.002

Cornhole Board Dimensions and Guidelines Homenish

Cornhole Distance Rules Everything You Need to Know Garden Games, Backyard

Cornhole Board Dimensions Quality Play Sports Dimensia

Cornhole Distance Kids Dimensions & Drawings

DIY Cornhole Board Plans Free and Easy

Corn Hole Dimensions, Cornhole Dimensions Cornhole, Corn hole game, Cornhole Whether it

Cornhole Court and Board Dimensions (Size and Measurements)
The American Cornhole Association is the original and official governing body of cornhole. According to the American Cornhole Associate, the standard cornhole board should be 47.5 to 48 inches long.Its width should range from 23.5 to 24 inches.Therefore, if you see boards that are 3 feet long and 2 feet wide, then these are not up to the standard cornhole board dimensions.. Here are the ACO cornhole board dimension standards for ACO approved boards: Hardwood plywood playing surface measuring 47.5" to 48" x 23.5" to 24". Playing surface with a minimum thickness of 1/2" with cross-section backing, or 3/4" with or without cross-section backing. Each hole is 6" diameter, centered 9" from the top of the.